Casa di corte in vendita

Basiliano, Piazza Umberto I
€ 47.000
5 locali 5 locali
90 Mq 90 Mq
1 bagno 1 bagno

Casa di corte in vendita

Basiliano, Piazza Umberto I

Descrizione annuncio

Tecnocasa la più grande rete di intermediazione in Europa con 2807 punti vendita in Italia e 4022 nel mondo vi propone:

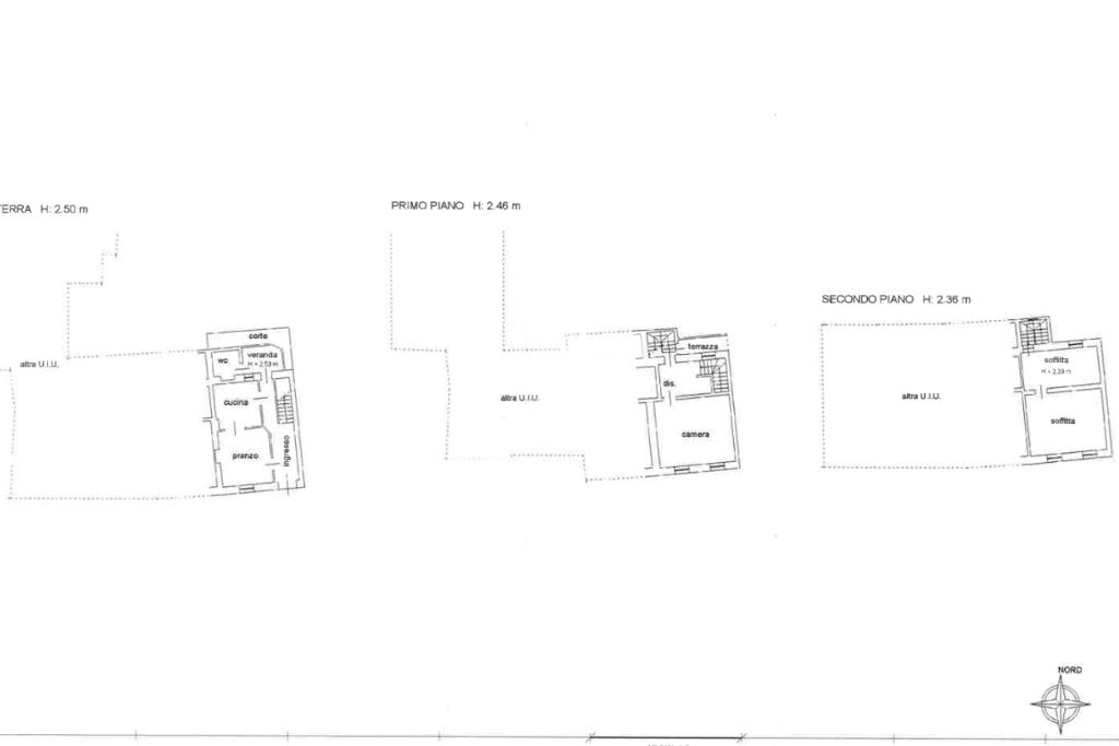
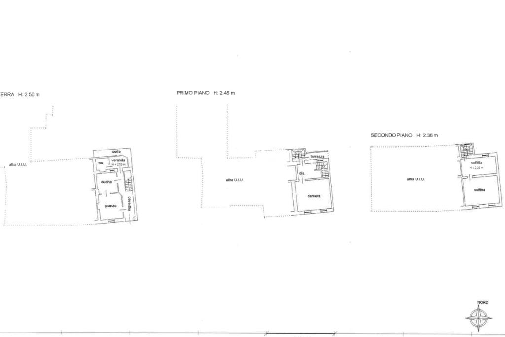
L’abitazione sorge nella tranquilla piazza del paese di Vissandone frazione di Basiliano ed è vicina ai principali servizi.

Accedendo dalla porta ci troviamo nel disimpegno giorno che presenta sulla sinistra l’ingresso al luminoso soggiorno separato dall’abitabile cucina.

Il piano terra presenta anche una comoda veranda che da sulla corte interna, con un primo bagno.

Accedendo al primo piano tramite la scalinata sita nel disimpegno giorno, arriviamo alla zona notte composta daun disimpegno ed un’abbondante e luminosa camera da letto.

Proseguendo al secondo piano sono presenti altre due abbondanti camere da letto.

La possibilità di personalizzare l’immobile ne rende una grande possibilità di sviluppo.

Mostra tutto

Nelle vicinanze

Trasporto pubblico Trasporto pubblico
Basiliano
Basiliano
1,6 Km
Blessano Via Camillo Benso di Cavour fronte 7
Blessano Via Camillo Benso di Cavour fronte 7
2,0 Km
Blessano Via Camillo Benso di Cavour 7
Blessano Via Camillo Benso di Cavour 7
2,0 Km
Scuole Scuole
Scuola secondaria di primo grado Aurelio Mistruzzi
710 m
Scuola Primaria Enrico Fruch
1,7 Km
Farmacia Farmacia
Farmacia Santorini
1,1 Km
Negozi Negozi
Alimentari Zorzi Caterina
2,1 Km
Bar Bar
Bar Sport
2,1 Km
Millenium
2,1 Km
Mostra tutto

Caratteristiche

Rif.:
60697184
Piano:
3 di 3 (Piano su più livelli)
Posti auto:
1
Camere da letto:
2
Arredamento:
Parziale
Condizionamento:
Predisposizione impianto
Mostra tutto
Prezzo Prezzo
€ 47.000
Rata mutuo Rata mutuo
€ 222 / mese
Spese annue Spese annue
€ 0
Proponi il tuo prezzoProponi il tuo prezzo

Classe Energetica

G
G
G
G
G
G
G
G
G
Anno di costruzione:
1950
Riscaldamento:
Autonomo
Tipo impianto:
A stufa
Tipo alimentazione:
Gasolio

Ti interessa visionare l'immobile?

Fissa un appuntamento  Fissa un appuntamento

Richiedi informazioni

Clicca su Leggi per aprire l'informativa
* Questi campi sono obbligatori

Calcola il tuo mutuo

Semplice e senza impegno
Anticipo

( % )
Mutuo

( % )

pochi semplici passi

inserisci i tuoi dati
Questionario completato
Grazie per aver richiesto un appuntamento senza impegno con un nostro Consulente del Credito e Assicurativo.

Hai inserito correttamente tutti i dati necessari e a breve riceverai una e-mail con un link da convalidare per inviare i tuoi dati.
Affiliato
Campoformio Srl
P.zza Largo Municipio, 27 33030 Campoformido (UD)

Il nostro staff


  • Giacomo Govetto
    Affiliato

  • Martina Nobile
    Coordinatrice

  • Tiziana Tremamunno
    Affiliata

  • Niccolò Zamparo
    Collaboratore
P.zza Largo Municipio, 27 33030 Campoformido (UD)
Zona: Campoformido-Basiliano-Mereto Di Tomba-Talmassons
Mostra su mappa
Orari: Lunedì-venerdì dalle 9 alle 13 e dalle 15 alle 19.30. Sabato dalle 9.30 alle 13. Il pomeriggio del sabato e la domenica siamo a disposizione su appuntamento.
Affiliato
Campoformio Srl
P.zza Largo Municipio, 27 33030 Campoformido (UD)

2025 Tecnocasa Franchising S.p.A. - P. IVA 08365160152 - Via Monte Bianco 60/A 20089 Rozzano (MI). Ogni agenzia ha un proprio titolare ed è autonoma. Privacy policy | Policy utilizzo | Cookie policy