Casa di corte in vendita

Basiliano, Via a. Manzoni
€ 62.000
3 locali 3 locali
200 Mq 200 Mq
1 bagno 1 bagno

Casa di corte in vendita

Basiliano, Via a. Manzoni

Descrizione annuncio

Tecnocasa la più grande rete di intermediazione in Europa con 2807 punti vendita in Italia e 4022 nel mondo vi propone:

Nella zona del centro di Basiliano, a un passo dai servizi che il paese offre, come bar, panifici, banche, scuole e stazione ferroviaria, trova spazio una casa indipendente dalle grandi potenzialità, ideale per chi cerca spazio, carattere e la possibilità di personalizzare ogni ambiente secondo il proprio gusto.

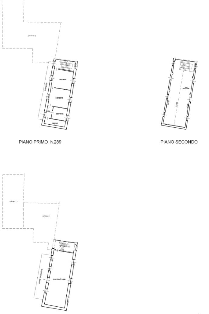
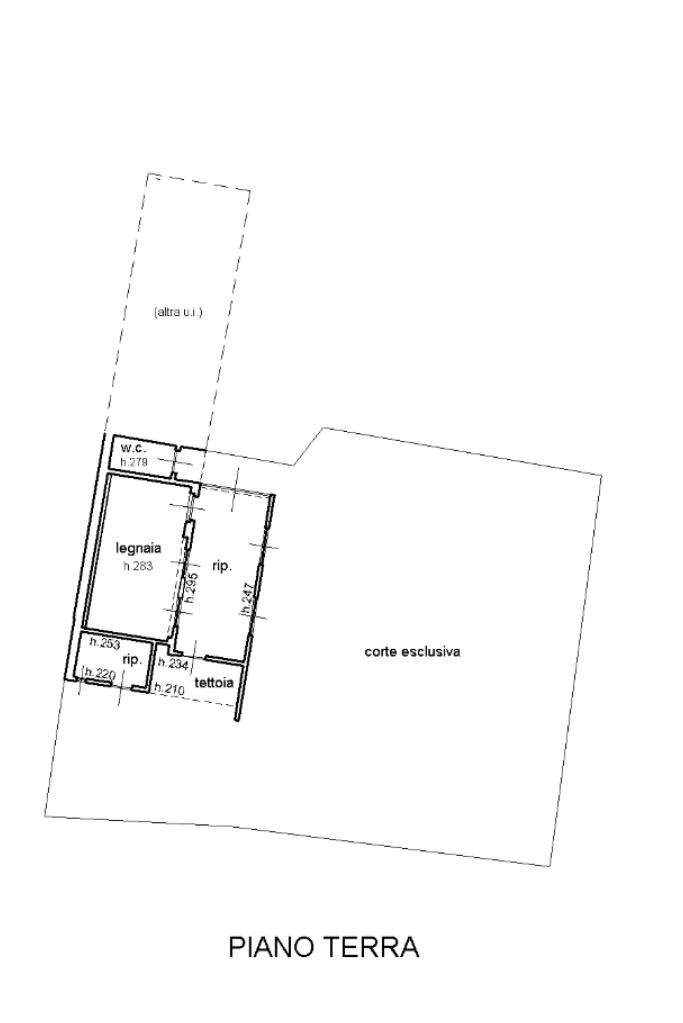
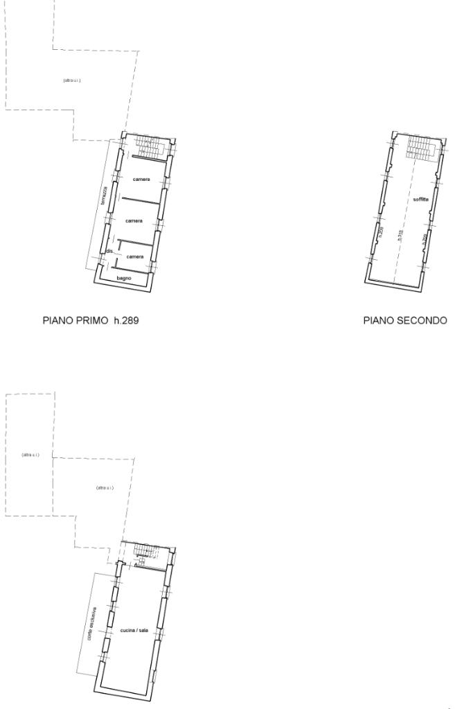
L’immobile si sviluppa su tre piani abitabili, il piano terra, un tempo adibito a laboratorio per la produzione del pane risulta perfetto come taverna, studio, area hobby o per creare una suggestiva zona living open space.

Accedendo al primo piano si trovano tre camere spaziose e luminose, oltre ad un bagno. I solai in legno donano calore e autenticità all’ambiente. Un’ampia soffitta abitabile, con travi a vista, offre ulteriori spazi da trasformare in mansarda, sala giochi o zona relax.

A completare la soluzione un box auto, con annessa lavanderia, per la massima comodità e un giardino privato di circa 150 mq, ideale per momenti all’aperto, barbecue, o semplicemente per godersi un po’ di verde in piena tranquillità.

La casa ha bisogno di lavori di una ristrutturazione completa, ma proprio questo offre l’opportunità di personalizzare completamente l’abitazione secondo le tue esigenze e il tuo stile.

Una casa con anima e storia, pronta a rinascere grazie al tuo progetto.

Mostra tutto

Nelle vicinanze

Trasporto pubblico Trasporto pubblico
Basiliano
Basiliano
340 m
Orgnano - Bivio SR 13
Orgnano - Bivio SR 13
2,3 Km
Blessano Via Camillo Benso di Cavour 7
Blessano Via Camillo Benso di Cavour 7
2,7 Km
Scuole Scuole
Scuola secondaria di primo grado Aurelio Mistruzzi
860 m
Scuola Primaria Enrico Fruch
2,4 Km
Farmacia Farmacia
Farmacia Santorini
100 m
Negozi Negozi
Alimentari Zorzi Caterina
2,8 Km
Bar Bar
Bar Sport
2,8 Km
Millenium
2,9 Km
Alla Vecchia Pesa
3,0 Km
Mostra tutto

Caratteristiche

Rif.:
61129648
Piano:
3 di 3 (Piano su più livelli)
Box:
1
Posti auto:
1
Balconi:
1
Camere da letto:
3
Mostra tutto
Prezzo Prezzo
€ 62.000
Rata mutuo Rata mutuo
€ 293 / mese
Spese annue Spese annue
€ 0
Proponi il tuo prezzoProponi il tuo prezzo

Classe Energetica

Questo immobile è esente da classe energetica
Anno di costruzione:
1900
Riscaldamento:
Autonomo
Tipo impianto:
A radiatori
Tipo alimentazione:
Metano

Ti interessa visionare l'immobile?

Fissa un appuntamento  Fissa un appuntamento

Richiedi informazioni

Clicca su Leggi per aprire l'informativa
* Questi campi sono obbligatori

Calcola il tuo mutuo

Semplice e senza impegno
Anticipo

( % )
Mutuo

( % )

pochi semplici passi

inserisci i tuoi dati
Questionario completato
Grazie per aver richiesto un appuntamento senza impegno con un nostro Consulente del Credito e Assicurativo.

Hai inserito correttamente tutti i dati necessari e a breve riceverai una e-mail con un link da convalidare per inviare i tuoi dati.
Affiliato
Campoformio Srl
P.zza Largo Municipio, 27 33030 Campoformido (UD)

Il nostro staff


  • Giacomo Govetto
    Affiliato

  • Martina Nobile
    Coordinatrice

  • Tiziana Tremamunno
    Affiliata

  • Niccolò Zamparo
    Collaboratore
P.zza Largo Municipio, 27 33030 Campoformido (UD)
Zona: Campoformido-Basiliano-Mereto Di Tomba-Talmassons
Mostra su mappa
Orari: Lunedì-venerdì dalle 9 alle 13 e dalle 15 alle 19.30. Sabato dalle 9.30 alle 13. Il pomeriggio del sabato e la domenica siamo a disposizione su appuntamento.
Affiliato
Campoformio Srl
P.zza Largo Municipio, 27 33030 Campoformido (UD)

2025 Tecnocasa Franchising S.p.A. - P. IVA 08365160152 - Via Monte Bianco 60/A 20089 Rozzano (MI). Ogni agenzia ha un proprio titolare ed è autonoma. Privacy policy | Policy utilizzo | Cookie policy