Casa di corte in vendita

Basiliano, Via Vittorio Veneto - Orgnano
€ 40.000
3 locali 3 locali
90 Mq 90 Mq
1 bagno 1 bagno

Casa di corte in vendita

Basiliano, Via Vittorio Veneto - Orgnano

Descrizione annuncio

Tecnocasa la più grande rete di intermediazione in Europa con 2807 punti vendita in Italia e 4022 nel mondo vi propone:

L'immobile è stituato a Orgnano, tranquilla frazione del comune di Basiliano, particolarmente apprezzata per la sua riservatezza e per il contesto tranquillo in cui è inserita. La posizione consente di godere della quiete tipica dei piccoli centri, pur rimanendo comodamente collegati alle principali vie di comunicazione e ai servizi della zona.

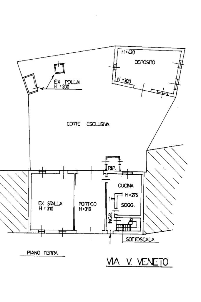
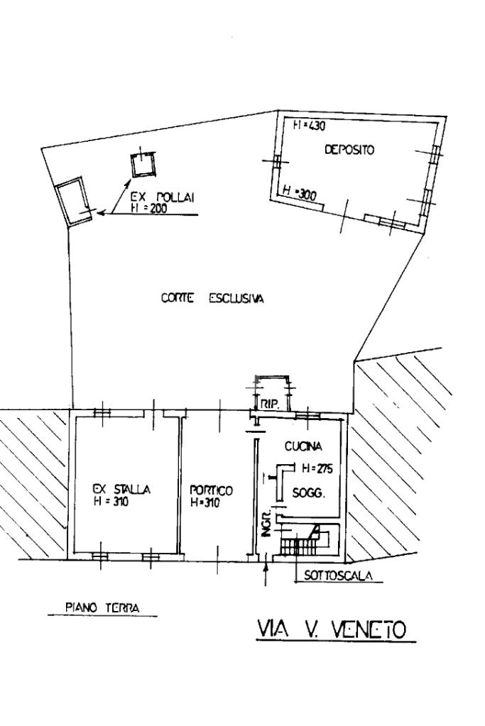
L’immobile, edificato nei primi anni del ’900, conserva il fascino e la tipica distribuzione degli spazi delle abitazioni dell’epoca, caratterizzate da ambienti ampi e ben definiti.

Varcando il portone in legno, attraverso l’ampio passo carraio o l’ingresso pedonale, si accede direttamente all’abitazione, dove si viene accolti da una zona giorno open space. Questo ambiente risulta particolarmente interessante grazie al collegamento diretto con il sottoportico e con il giardino privato, creando una naturale continuità tra interno ed esterno, ideale per vivere appieno gli spazi nella bella stagione.

Salendo al primo piano si sviluppa la zona notte, composta da tre camere da letto di generose dimensioni, di cui due matrimoniali e una singola, oltre a un bagno finestrato con doccia. Gli ambienti offrono ampie possibilità di personalizzazione, permettendo di adattare gli spazi alle proprie esigenze abitative.

Proseguendo al secondo e ultimo piano si trova una spaziosa soffitta non abitabile, perfetta come deposito o come ulteriore spazio accessorio.

A completare la proprietà troviamo un ampio giardino privato, ideale per chi desidera uno spazio verde da vivere in totale tranquillità, e un fabbricato accessorio ad uso magazzino, particolarmente utile come deposito o area di lavoro.

L’immobile si presenta completamente da ristrutturare, rappresentando una soluzione ideale per chi desidera realizzare una casa su misura, valorizzando il carattere storico dell’abitazione e adattandola al proprio gusto e alle moderne esigenze abitative.

Mostra tutto

Nelle vicinanze

Trasporto pubblico Trasporto pubblico
Basiliano
Basiliano
2,6 Km
Orgnano: piazza Chiesa
Orgnano: piazza Chiesa
90 m
Orgnano: via Podgora
Orgnano: via Podgora
530 m
Scuole Scuole
Scuola Secondaria di Primo Grado G. Marchetti - Campoformido
1,8 Km
Scuola Primaria San Giovanni Bosco - Campoformido
1,8 Km
Farmacia Farmacia
Patini
1,9 Km
Farmacia Santorini
2,9 Km
Supermercati Supermercati
Friulmarket
1,5 Km
REurospesa (Unione Cooperativa Bressa)
2,8 Km
Negozi Negozi
Panificio Pasticceria Zuliani
1,6 Km
Panificio Lerussi
2,0 Km
Da Rico Abbigliamento
2,9 Km
Bar Bar
Alla Vecchia Pesa
140 m
Al Trattato
1,6 Km
Bar
1,8 Km
Osteria
1,9 Km
Stella d'Oro
1,9 Km
Ristoranti Ristoranti
Al Marangon
180 m
Trattoria Al Trattato
1,7 Km
Agriturismo Borc di Sot
1,8 Km
Da Rico
2,9 Km
Mostra tutto

Caratteristiche

Rif.:
61200322
Piano:
2 di 2 (Piano terra)
Posti auto:
1
Camere da letto:
2
Arredamento:
Parziale
Condizionamento:
Autonomo
Mostra tutto
Prezzo Prezzo
€ 40.000
Rata mutuo Rata mutuo
€ 190 / mese
Spese annue Spese annue
€ 0
Proponi il tuo prezzoProponi il tuo prezzo

Classe Energetica

G
G
G
G
G
G
G
G
G
EP globale non rinnovabile:
0.00 kW h/m² anno
EP globale rinnovabile:
0.00 kW h/m² anno
EP invernale del fabbricato:
EP estiva del fabbricato:
Anno di costruzione:
1940
Riscaldamento:
Autonomo
Tipo impianto:
A radiatori
Tipo alimentazione:
Metano

Ti interessa visionare l'immobile?

Fissa un appuntamento  Fissa un appuntamento

Richiedi informazioni

Clicca su Leggi per aprire l'informativa
* Questi campi sono obbligatori

Calcola il tuo mutuo

Semplice e senza impegno
Anticipo

( % )
Mutuo

( % )

pochi semplici passi

inserisci i tuoi dati
Questionario completato
Grazie per aver richiesto un appuntamento senza impegno con un nostro Consulente del Credito e Assicurativo.

Hai inserito correttamente tutti i dati necessari e a breve riceverai una e-mail con un link da convalidare per inviare i tuoi dati.
Affiliato
Campoformio Srl
P.zza Largo Municipio, 27 33030 Campoformido (UD)

Il nostro staff


  • Giacomo Govetto
    Affiliato

  • Martina Nobile
    Coordinatrice

  • Tiziana Tremamunno
    Affiliata
P.zza Largo Municipio, 27 33030 Campoformido (UD)
Zona: Campoformido-Basiliano-Mereto Di Tomba-Talmassons
Mostra su mappa
Orari: Lunedì-venerdì dalle 9 alle 13 e dalle 15 alle 19.30. Sabato dalle 9.30 alle 13. Il pomeriggio del sabato e la domenica siamo a disposizione su appuntamento.
Affiliato
Campoformio Srl
P.zza Largo Municipio, 27 33030 Campoformido (UD)

2026 Tecnocasa Franchising S.p.A. - P. IVA 08365160152 - Via Monte Bianco 60/A 20089 Rozzano (MI). Ogni agenzia ha un proprio titolare ed è autonoma. Privacy policy | Policy utilizzo | Cookie policy