Casa di corte in vendita

Campoformido, Via Roma
€ 94.000
4 locali 4 locali
120 Mq 120 Mq
2 bagni 2 bagni

Casa di corte in vendita

Campoformido, Via Roma

Descrizione annuncio

Tecnocasa la più grande rete di intermediazione in Europa con 2807 punti vendita in Italia e 4022 nel mondo vi propone:

L’immobile è situato nel centro di Campoformido, una zona strategica e ben collegata, a pochi passi dai principali servizi che il paese ha da offrire.

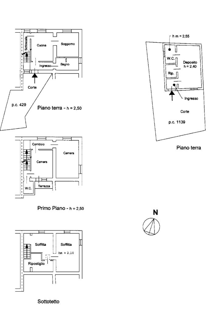
Si trova in un contesto di corte tradizionale, un elemento tipico dell’architettura locale, che conferisce alla proprietà un fascino particolare. La casa si sviluppa su tre livelli fuori terra e include una dependance esterna, arricchendo ulteriormente l’offerta abitativa.

L’accesso alla corte è facilitato da un ampio passo carraio, in comune con le altre unità, che garantisce un comodo ingresso.

Attraversato il portoncino in PVC, si accede direttamente alla zona giorno, che si caratterizza per la luminosità e la funzionalità degli spazi. La zona giorno è divisa in una cucina abitabile e un soggiorno accogliente, mentre un comodo bagno è posizionato sulla destra, facilmente accessibile.

Una scala interna conduce al piano superiore, dove si trova il reparto notte. Qui, due camere matrimoniali di generose dimensioni offrono un’ottima privacy, mentre un secondo bagno, anch’esso ben distribuito, serve il piano in modo funzionale.

Il secondo e ultimo piano è dedicato alla soffitta, attualmente al grezzo, ma con un potenziale enorme. Questo spazio, ampio e versatile, può essere trasformato in ulteriori camere da letto, uno studio o una zona relax, con la possibilità di realizzare un terzo bagno finestrato, per aumentare ulteriormente il comfort.

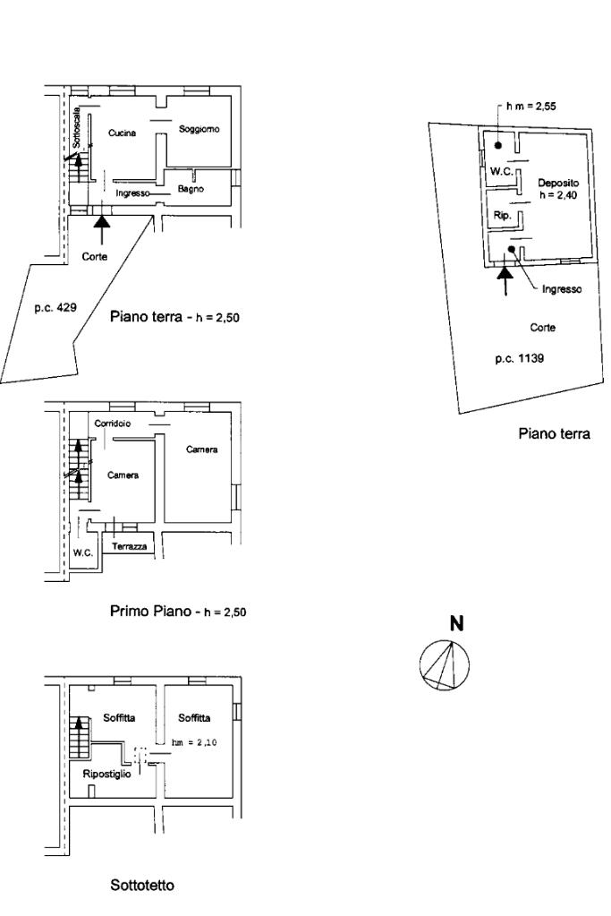
A completare la proprietà, una pratica e ben strutturata dependance esterna che ospita una taverna con zona pranzo, un angolo lavanderia e una cantinetta per lo stoccaggio. Questo spazio supplementare è perfetto per ospitare amici e familiari o per essere utilizzato come area di svago e relax.

Nel complesso, l’immobile offre una combinazione perfetta di spazi abitativi comodi e funzionali, con una posizione centrale e un notevole potenziale di ampliamento grazie alla soffitta e alla dependance. Un’opportunità unica per chi cerca una casa che coniughi tradizione, praticità e possibilità di personalizzazione.

Mostra tutto

Nelle vicinanze

Trasporto pubblico Trasporto pubblico
Campoformido:via Basaldella/Roma
Campoformido:via Basaldella/Roma
90 m
Campoformido - Largo Municipio
Campoformido - Largo Municipio
110 m
Scuole Scuole
Scuola Secondaria di Primo Grado G. Marchetti - Campoformido
610 m
Scuola Primaria San Giovanni Bosco - Campoformido
710 m
Farmacia Farmacia
Patini
70 m
Supermercati Supermercati
Friulmarket
490 m
REurospesa (Unione Cooperativa Bressa)
2,1 Km
Negozi Negozi
Panificio Lerussi
30 m
Panificio Pasticceria Zuliani
390 m
Da Rico Abbigliamento
2,2 Km
Bar Bar
Stella d'Oro
70 m
Osteria
80 m
Bar
160 m
Al Trattato
360 m
Marc
2,0 Km
Ristoranti Ristoranti
Trattoria Al Trattato
300 m
Agriturismo Borc di Sot
460 m
Al Marangon
1,9 Km
Da Rico
2,1 Km
Mostra tutto

Caratteristiche

Rif.:
61008765
Piano:
2 di 2 (Piano su più livelli)
Posti auto:
1
Balconi:
1
Camere da letto:
3
Arredamento:
Parziale
Mostra tutto
Prezzo Prezzo
€ 94.000
Rata mutuo Rata mutuo
€ 444 / mese
Spese annue Spese annue
€ 0
Proponi il tuo prezzoProponi il tuo prezzo
Immobile valutato con T·Valuta

Classe Energetica

Questo immobile è esente da classe energetica
Anno di costruzione:
1950
Riscaldamento:
Autonomo
Tipo impianto:
A radiatori
Tipo alimentazione:
Metano

Ti interessa visionare l'immobile?

Fissa un appuntamento  Fissa un appuntamento

Richiedi informazioni

Clicca su Leggi per aprire l'informativa
* Questi campi sono obbligatori

Calcola il tuo mutuo

Semplice e senza impegno
Anticipo

( % )
Mutuo

( % )

pochi semplici passi

inserisci i tuoi dati
Questionario completato
Grazie per aver richiesto un appuntamento senza impegno con un nostro Consulente del Credito e Assicurativo.

Hai inserito correttamente tutti i dati necessari e a breve riceverai una e-mail con un link da convalidare per inviare i tuoi dati.
Affiliato
Campoformio Srl
P.zza Largo Municipio, 27 33030 Campoformido (UD)

Il nostro staff


  • Giacomo Govetto
    Affiliato

  • Martina Nobile
    Coordinatrice

  • Tiziana Tremamunno
    Affiliata

  • Niccolò Zamparo
    Collaboratore
P.zza Largo Municipio, 27 33030 Campoformido (UD)
Zona: Campoformido-Basiliano-Mereto Di Tomba-Talmassons
Mostra su mappa
Orari: Lunedì-venerdì dalle 9 alle 13 e dalle 15 alle 19.30. Sabato dalle 9.30 alle 13. Il pomeriggio del sabato e la domenica siamo a disposizione su appuntamento.
Affiliato
Campoformio Srl
P.zza Largo Municipio, 27 33030 Campoformido (UD)

2025 Tecnocasa Franchising S.p.A. - P. IVA 08365160152 - Via Monte Bianco 60/A 20089 Rozzano (MI). Ogni agenzia ha un proprio titolare ed è autonoma. Privacy policy | Policy utilizzo | Cookie policy