Casa indipendente in vendita

Lestizza, Via V. Veneto - Nespoledo
€ 148.000
4 locali 4 locali
244 Mq 244 Mq
2 bagni 2 bagni

Casa indipendente in vendita

Lestizza, Via V. Veneto - Nespoledo

Descrizione annuncio

Tecnocasa la più grande rete di intermediazione in Europa con 2807 punti vendita in Italia e 4022 nel mondo vi propone:

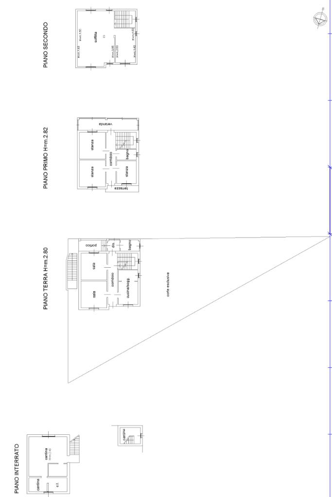
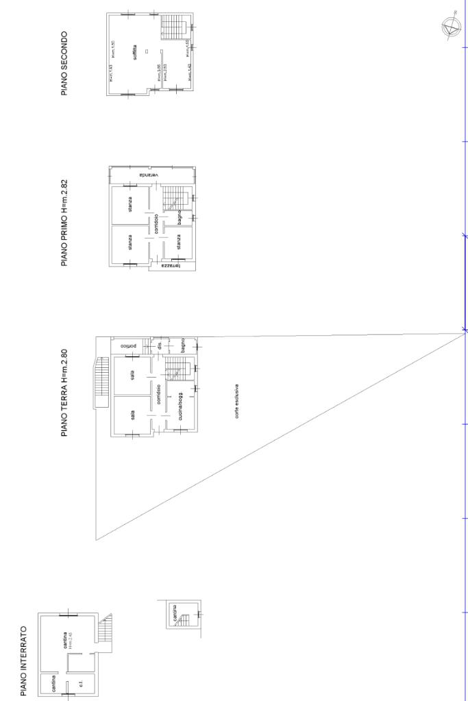
L’abitazione è posta a Nespoledo, frazione di Lestizza, situata a metà strada dal capoluogo comunale e dal comune di Basiliano, in una zona riservata con vicinanza a servizi che apprezzano il quartiere.

Si tratta di una casa indipendente su più livelli dalle abbondanti metrature, con giardino privato recintato e ampie pertinenze esterne.

L’ingresso principale conduce a un luminoso e spazioso corridoio che divide la zona giorno in due parti.
Sulla destra prendono spazio due locali: una sala da pranzo con cucina annessa, separate da un’arcata in muratura, e, attraverso un disimpegno, il primo servizio finestrato dell’immobile. Sulla sinistra si sviluppano due generose stanze di circa 15 mq, utilizzabili come soggiorno o come camere matrimoniali.

Attraverso il disimpegno adiacente al servizio, è possibile raggiungere anche il portico verandato posteriore.

Tramite l’ampia scala si raggiunge la zona notte dove prendono spazio due camere matrimoniali e una camera doppia.
In questo piano è presente il secondo bagno finestrato.

La casa dispone anche di una comoda e spaziosa veranda chiusa con accesso diretto da una camera matrimoniale e dal corridoio. Un’ulteriore terrazza è collegata alla camera doppia.

Questo piano al grezzo permette di personalizzare le rifiniture interne a proprio piacimento.

Al secondo e ultimo piano si estende la luminosa e abitabile soffitta di circa 60 mq.

Sia dal piano terra che dall’esterno è possibile raggiungere la cantina, dove è presente anche un vano con centrale termica.

A completare lo spazio esterno, ampie strutture su due livelli utilizzabili come rimesse o deposito.

L’immobile necessita di lavori di ammodernamento per quanto riguarda il piano terra e completamento delle rifiniture per il primo piano, dando ampio spazio ai desideri e alle esigenze personali.

Mostra tutto

Nelle vicinanze

Trasporto pubblico Trasporto pubblico
Basagliapenta - piazza S.Valentino
Basagliapenta - piazza S.Valentino
1,8 Km
Ristoranti Ristoranti
Ai Colonos
1,7 Km
Trattoria Da Gino
2,7 Km
Mostra tutto

Caratteristiche

Rif.:
60855861
Piano:
2 di 3 (Piano su più livelli)
Box:
2
Terrazzi:
3
Camere da letto:
3
Condizionamento:
Assente
Mostra tutto
Prezzo Prezzo
€ 148.000
Rata mutuo Rata mutuo
€ 699 / mese
Spese annue Spese annue
€ 0
Proponi il tuo prezzoProponi il tuo prezzo

Classe Energetica

G
G
G
G
G
G
G
G
G
EP globale non rinnovabile:
292.98 kW h/m² anno
EP globale rinnovabile:
0.68 kW h/m² anno
EP invernale del fabbricato:
EP estiva del fabbricato:
Anno di costruzione:
1962
Riscaldamento:
Autonomo
Tipo impianto:
A radiatori
Tipo alimentazione:
Gasolio

Ti interessa visionare l'immobile?

Fissa un appuntamento  Fissa un appuntamento

Richiedi informazioni

Clicca su Leggi per aprire l'informativa
* Questi campi sono obbligatori

Calcola il tuo mutuo

Semplice e senza impegno
Anticipo

( % )
Mutuo

( % )

pochi semplici passi

inserisci i tuoi dati
Questionario completato
Grazie per aver richiesto un appuntamento senza impegno con un nostro Consulente del Credito e Assicurativo.

Hai inserito correttamente tutti i dati necessari e a breve riceverai una e-mail con un link da convalidare per inviare i tuoi dati.
Affiliato
Campoformio Srl
P.zza Largo Municipio, 27 33030 Campoformido (UD)

Il nostro staff


  • Giacomo Govetto
    Affiliato

  • Martina Nobile
    Coordinatrice

  • Tiziana Tremamunno
    Affiliata

  • Niccolò Zamparo
    Collaboratore
P.zza Largo Municipio, 27 33030 Campoformido (UD)
Zona: Campoformido-Basiliano-Mereto Di Tomba-Talmassons
Mostra su mappa
Orari: Lunedì-venerdì dalle 9 alle 13 e dalle 15 alle 19.30. Sabato dalle 9.30 alle 13. Il pomeriggio del sabato e la domenica siamo a disposizione su appuntamento.
Affiliato
Campoformio Srl
P.zza Largo Municipio, 27 33030 Campoformido (UD)

2025 Tecnocasa Franchising S.p.A. - P. IVA 08365160152 - Via Monte Bianco 60/A 20089 Rozzano (MI). Ogni agenzia ha un proprio titolare ed è autonoma. Privacy policy | Policy utilizzo | Cookie policy