Casa di corte in vendita

Mereto Di Tomba, Via Cristoforo Colombo - Pantianicco
€ 68.000
4 locali 4 locali
150 Mq 150 Mq
1 bagno 1 bagno

Casa di corte in vendita

Mereto Di Tomba, Via Cristoforo Colombo - Pantianicco

Descrizione annuncio

Tecnocasa, la principale rete di intermediazione immobiliare in Europa con 2807 punti vendita in Italia e 4022 propone:

La soluzione sorge in un contesto tranquillo e riservato del paese di Pantianicco, frazione del comune di Mereto di Tomba, paesino ricercato per la tranquillità e i servizi vicini facilmente raggiungibili.

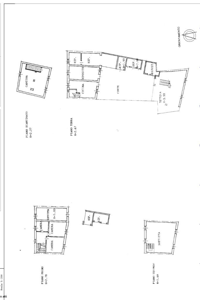
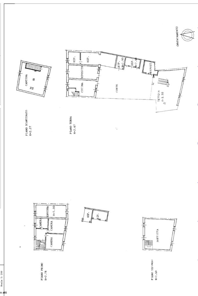
Varcando il portone principale di ingresso, si viene accolti dalla corte interna di circa 150mq che accoglie una serie di pertinenze un tempo adibite a stalle e ripostigli e i due fabbricati abitativi; nel vialetto d'accesso sulla destra si trova un pratico bagno di servizio finestrato con doccia e una stanza una volta adibita a conservazione vini.

Sulla sinistra si trova il primo fabbricato dove al piano terra prendono spazio una cucina con salotto rifinita con la classica perlina di un tempo e una pratica cantinetta nel sotto scala, salendo le scale si raggiunge la zona notte dell'abitazione composta da tre camere da letto matrimoniali.

Al secondo e ultimo piano si trova la luminosa e spaziosa soffitta che si estende per tutta la grandezza delle due unità.

Delle scale esterne poste all'interno della corte privata conducono al primo piano della seconda abitazione, dove si trovano due ulteriori spaziose camere da letto e il secondo bagno finestrato con doccia.

All'interno del cortile di proprietà è presente una tettoia al tempo adibita a ricovero per mezzi agricoli, ad oggi utilizzabile come posto auto coperto; tramite una botola si accede alla spaziosa cantina. Le ulteriori pertinenze possono essere sfruttate in qualsiasi maniera data la loro dimensione e praticità.

A completare la soluzione è presente un giardino di proprietà di circa 200mq di cui una parte edificabile.

L'immobile, grazie ai lavori di ristrutturazione di cui necessità, ha la possibilità di essere reso un corpo unico collegando le due abitazioni al primo piano. L'irrigazione per il giardino è collegata all'acquedotto con un costo di circa 20 annui.

Mostra tutto

Nelle vicinanze

Scuole Scuole
Scuola primaria "Cristoforo Colombo"
130 m
Supermercati Supermercati
Crai
160 m
Negozi Negozi
Cooperativa
90 m
Panificio Simonitti
160 m
Negozi
3,0 Km
Bar Bar
Bar Cooperativa
90 m
Bar Centrale
180 m
Bar da Roberta
3,0 Km
Mostra tutto

Caratteristiche

Rif.:
61081355
Piano:
3 di 3 (Piano su più livelli)
Posti auto:
2
Camere da letto:
3
Arredamento:
Assente
Condizionamento:
Autonomo
Mostra tutto
Prezzo Prezzo
€ 68.000
Rata mutuo Rata mutuo
€ 321 / mese
Spese annue Spese annue
€ 0
Proponi il tuo prezzoProponi il tuo prezzo

Classe Energetica

G
G
G
G
G
G
G
G
G
EP globale non rinnovabile:
327.20 kW h/m² anno
EP globale rinnovabile:
0.00 kW h/m² anno
EP invernale del fabbricato:
EP estiva del fabbricato:
Anno di costruzione:
1900
Riscaldamento:
Autonomo
Tipo impianto:
A radiatori
Tipo alimentazione:
Metano

Ti interessa visionare l'immobile?

Fissa un appuntamento  Fissa un appuntamento

Richiedi informazioni

Clicca su Leggi per aprire l'informativa
* Questi campi sono obbligatori

Calcola il tuo mutuo

Semplice e senza impegno
Anticipo

( % )
Mutuo

( % )

pochi semplici passi

inserisci i tuoi dati
Questionario completato
Grazie per aver richiesto un appuntamento senza impegno con un nostro Consulente del Credito e Assicurativo.

Hai inserito correttamente tutti i dati necessari e a breve riceverai una e-mail con un link da convalidare per inviare i tuoi dati.
Affiliato
Campoformio Srl
P.zza Largo Municipio, 27 33030 Campoformido (UD)

Il nostro staff


  • Giacomo Govetto
    Affiliato

  • Martina Nobile
    Coordinatrice

  • Tiziana Tremamunno
    Affiliata

  • Niccolò Zamparo
    Collaboratore
P.zza Largo Municipio, 27 33030 Campoformido (UD)
Zona: Campoformido-Basiliano-Mereto Di Tomba-Talmassons
Mostra su mappa
Orari: Lunedì-venerdì dalle 9 alle 13 e dalle 15 alle 19.30. Sabato dalle 9.30 alle 13. Il pomeriggio del sabato e la domenica siamo a disposizione su appuntamento.
Affiliato
Campoformio Srl
P.zza Largo Municipio, 27 33030 Campoformido (UD)

2025 Tecnocasa Franchising S.p.A. - P. IVA 08365160152 - Via Monte Bianco 60/A 20089 Rozzano (MI). Ogni agenzia ha un proprio titolare ed è autonoma. Privacy policy | Policy utilizzo | Cookie policy