Casa semindipendente in vendita

Talmassons, Via Camillo Cavour
€ 143.000
Prezzo aggiornato
3 locali 3 locali
220 Mq 220 Mq
2 bagni 2 bagni

Casa semindipendente in vendita

Talmassons, Via Camillo Cavour

Descrizione annuncio

Tecnocasa la più grande rete di intermediazione in Europa con 2807 punti vendita in Italia e 3919 nel mondo vi propone:

La casa sorge in pieno centro del paese di Sant’Andrat, piccola frazione del comune di Talmassons, un paese molto tranquillo e riservato, vicino ai comuni di Mortegliano e Castions di Strada nei quali si sviluppa la vita quotidiana.

La casa edificata orientativamente negli anni ’40, è accostata da un lato, situata all’interno di una corte privata, un bel contesto per chi ricerca riservatezza. L’ingresso dalla corte è consentito da un portone carraio che conduce alla zona del posto auto coperto e al giardino ben curato.

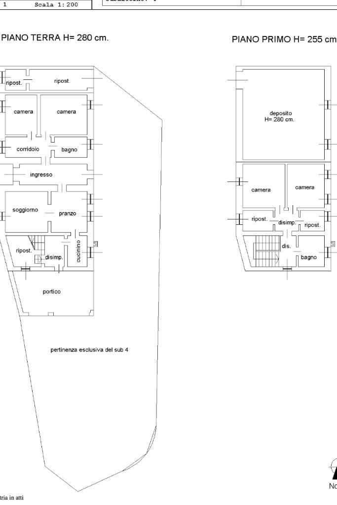
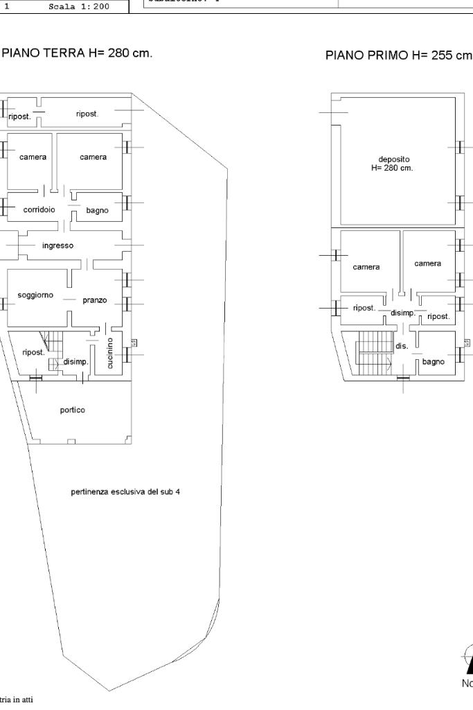
L’abitazione si sviluppa su due livelli abitativi; al piano terra si trova un comoda zona giorno composta dal cucinotto separato dal salotto di generose metrature, superato l’ampio corridoio si accede alla zona notte, composta da una camera matrimoniale e una singola, e dal bagno con doccia e finestrato, rifatto nel 2010.

Salendo la comoda e larga scala si accede al primo piano della casa, al momento allo stato grezzo, dal quale è possibile ricavare un ulteriore appartamento dalle stesse metrature del piano terra. Essendo allo stato grezzo si ha la possibilità di modificare la disposizione delle stanze a proprio gusto e piacimento.

Questa soluzione presenta infissi in legno con vetrocamera, scuri esterni da un lato e tapparelle nel fronte strada. Gli impianti sono stati ripresi nei primi anni 2000, il che permette di poterla abitare sin dal primo giorno.

Di recente è stata sostituita la caldaia a GPL e sono state inserite delle stufe a pellet per garantire un ottimo riscaldamento nei periodi invernali.

Ottima soluzione per una famiglia alla ricerca di spazi e comfort sia interni che esterni.

Mostra tutto

Nelle vicinanze

Scuole Scuole
Scuola Secondaria di Primo Grado Ugo Pellis
2,2 Km
Scuola Primaria Guglielmo Marconi
2,2 Km
Farmacia Farmacia
Farmacia Foramitti
2,4 Km
Supermercati Supermercati
Visotto
2,7 Km
Ristoranti Ristoranti
Mondelli Stable
680 m
Ristorante Pizzeria Napoleone
2,2 Km
Trattoria "La grise"
2,9 Km
Mostra tutto

Caratteristiche

Rif.:
61113985
Piano:
Su più livelli di 2
Totale piani:
2
Posti auto:
2
Camere da letto:
2
Arredamento:
Parziale
Mostra tutto
Prezzo Prezzo
€ 143.000
Rata mutuo Rata mutuo
€ 675 / mese
Proponi il tuo prezzoProponi il tuo prezzo

Classe Energetica

Questo immobile è esente da classe energetica
Anno di costruzione:
1940
Riscaldamento:
Autonomo
Tipo impianto:
A radiatori
Tipo alimentazione:
GPL

Prezzo ridotto di €1 (5%%)

Ti interessa visionare l'immobile?

Fissa un appuntamento  Fissa un appuntamento

Richiedi informazioni

Clicca su Leggi per aprire l'informativa
* Questi campi sono obbligatori

Calcola il tuo mutuo

Semplice e senza impegno
Anticipo

( % )
Mutuo

( % )

pochi semplici passi

inserisci i tuoi dati
Questionario completato
Grazie per aver richiesto un appuntamento senza impegno con un nostro Consulente del Credito e Assicurativo.

Hai inserito correttamente tutti i dati necessari e a breve riceverai una e-mail con un link da convalidare per inviare i tuoi dati.
Affiliato
Campoformio Srl
P.zza Largo Municipio, 27 33030 Campoformido (UD)

Il nostro staff


  • Giacomo Govetto
    Affiliato

  • Martina Nobile
    Coordinatrice

  • Tiziana Tremamunno
    Affiliata

  • Niccolò Zamparo
    Collaboratore
P.zza Largo Municipio, 27 33030 Campoformido (UD)
Zona: Campoformido-Basiliano-Mereto Di Tomba-Talmassons
Mostra su mappa
Orari: Lunedì-venerdì dalle 9 alle 13 e dalle 15 alle 19.30. Sabato dalle 9.30 alle 13. Il pomeriggio del sabato e la domenica siamo a disposizione su appuntamento.
Affiliato
Campoformio Srl
P.zza Largo Municipio, 27 33030 Campoformido (UD)

2025 Tecnocasa Franchising S.p.A. - P. IVA 08365160152 - Via Monte Bianco 60/A 20089 Rozzano (MI). Ogni agenzia ha un proprio titolare ed è autonoma. Privacy policy | Policy utilizzo | Cookie policy